椒江房地产网 > 椒江二手房
    洪家新都会高层3室2厅2卫129㎡
    2023/5/31 13:32:54
  • 建筑面积:
  • 129㎡
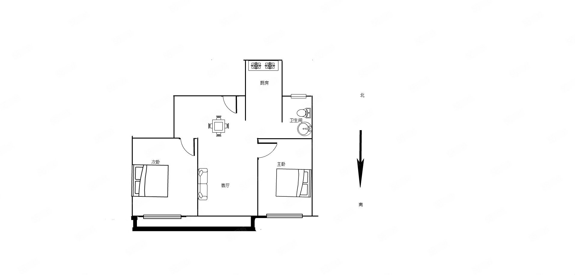
  • 户型:3室2厅2卫
  • 房产类型:
  • 高层
  • 朝向:南
  • 总 层 次:
  • 26层
  • 层次:低层
  • 建造时间:
  • 2021年竣工
  • 装修:精装修
  • 土地性质:
  • 其它,70年产权
  • 证件:待核查
  • 占地面积:
  • 待测量
  • 车库:待查待测
  • 所属小学:
  • 未知
  • 中学:未知
  • 方位:
  • 洪家
  • 地址:
  • 未登记
    配套设施

物业类型:普通住宅

    周边环境

暂无介绍

    详细描述

联系方式:和合易居海湾浪琴店葛苏红,88317183、88317185,1.户型特点:户型方正,采光好,无暗房。
1.业主诚心出售,付|款方式可谈。看房方便;此价格有效期为15天,业主报价可能会随时更,以业主报价为准。2.如果您对此房不满意,请点击我的头像,有更多的房源为您展示。或请直接与我联系,我会根据您的需求,结合当前市场价位,为您匹配更好的小区,更合适的房子。祝您身体健康,工作顺利!!!谢谢。

(联系时请说明来自《椒江房地产网》

    同区位房
    同价位房
    精彩推荐
关于我们 | 免责声明 | 联系我们
Copyright © 2025 椒江房地产网·浙ICP备08010913号-1 All Rights Reserved
版权所有 台州房地产网 技术支持 台州通联网络-台州网站建设,网页设计制作浙ICP备2024070870号-5